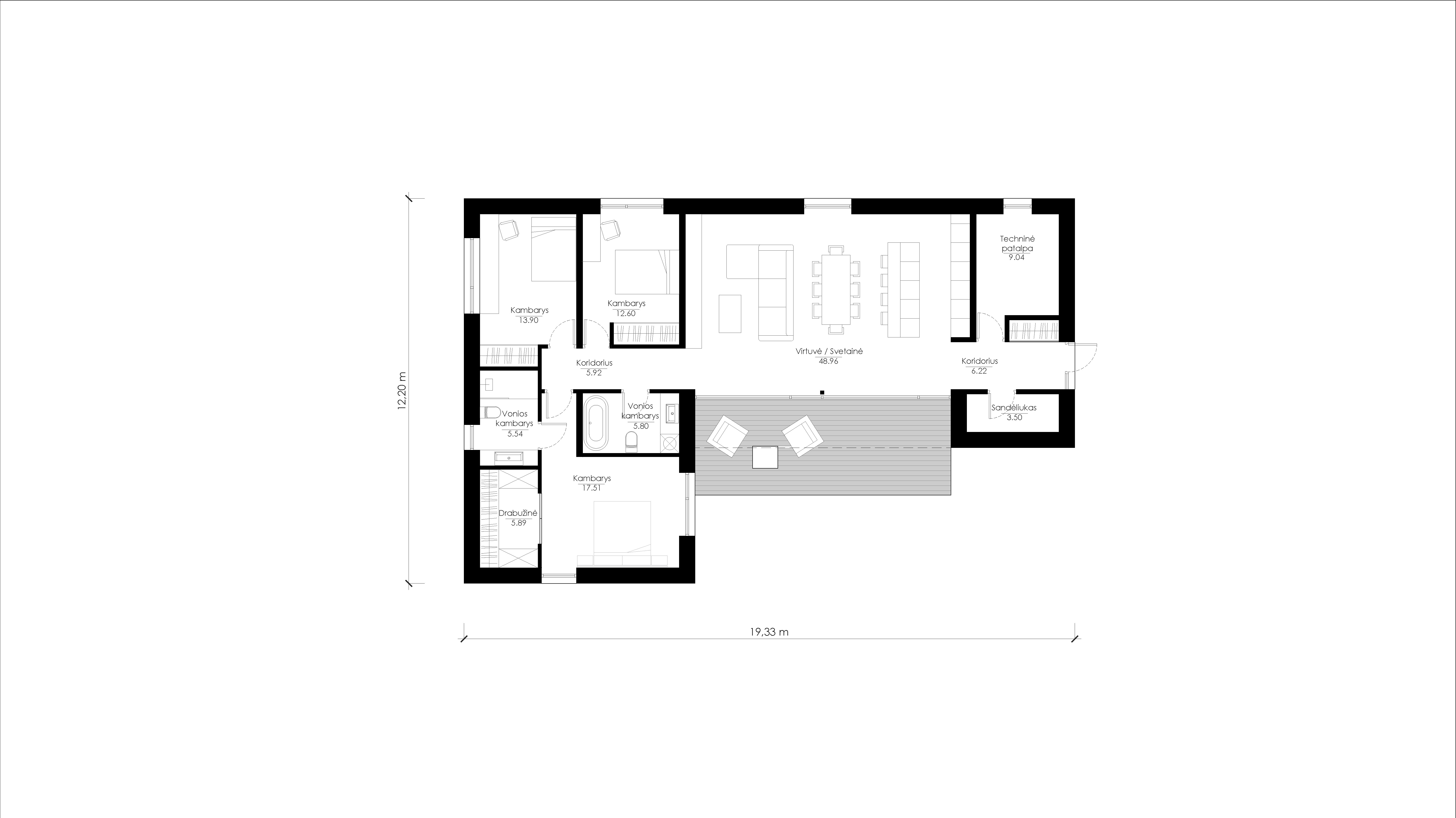
Projektas SUB: L03
Namo projektas SUB L03. Nuotrauka nr. 547Namo projektas SUB L03. Nuotrauka nr. 548Namo projektas SUB L03. Nuotrauka nr. 549Namo projektas SUB L03. Nuotrauka nr. 550Namo projektas SUB L03. Nuotrauka nr. 551