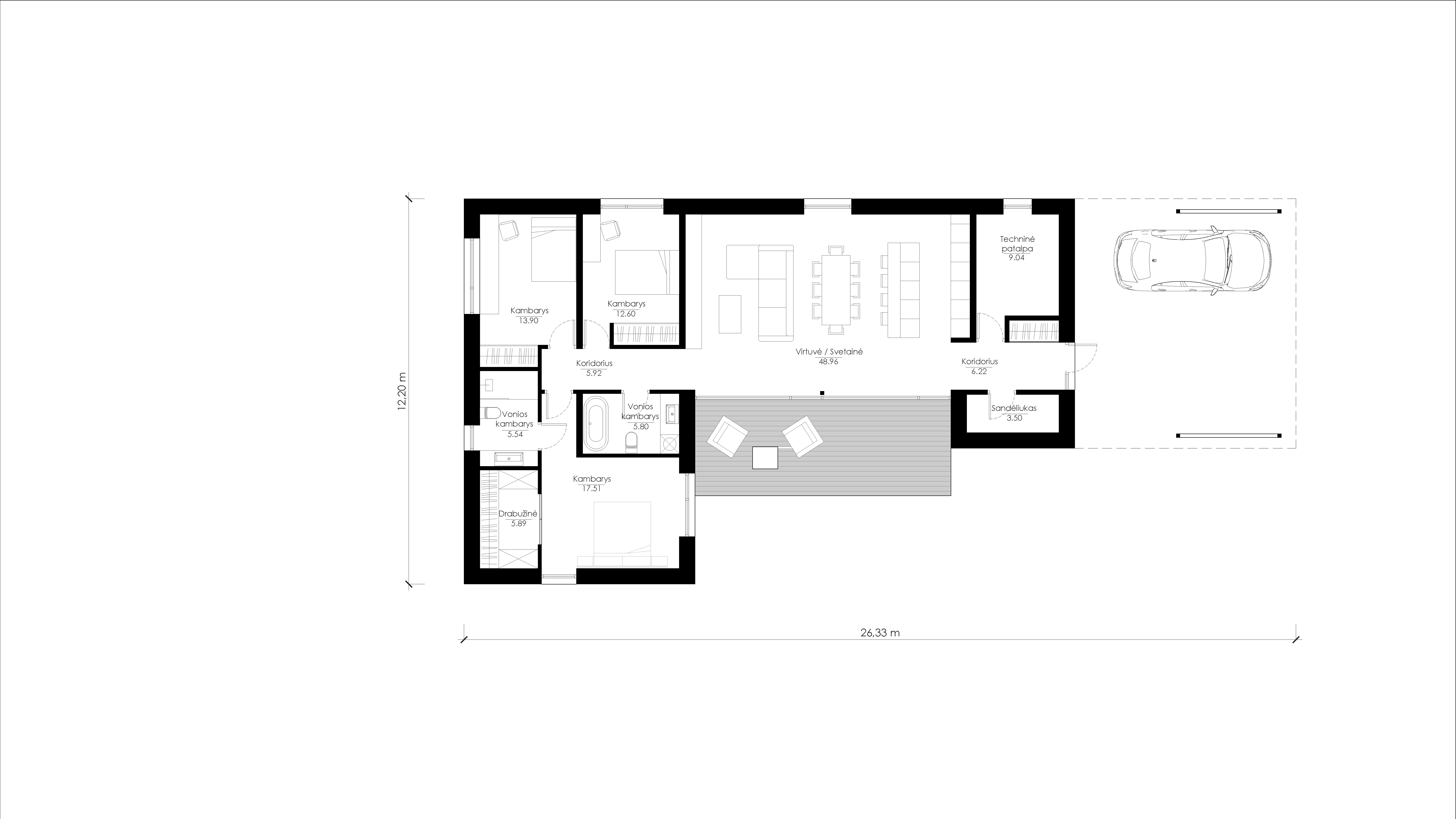
Projektas SUB: L02
Namo projektas SUB L02. Nuotrauka nr. 574Namo projektas SUB L02. Nuotrauka nr. 564Namo projektas SUB L02. Nuotrauka nr. 566Namo projektas SUB L02. Nuotrauka nr. 568Namo projektas SUB L02. Nuotrauka nr. 570Namo projektas SUB L02. Nuotrauka nr. 572