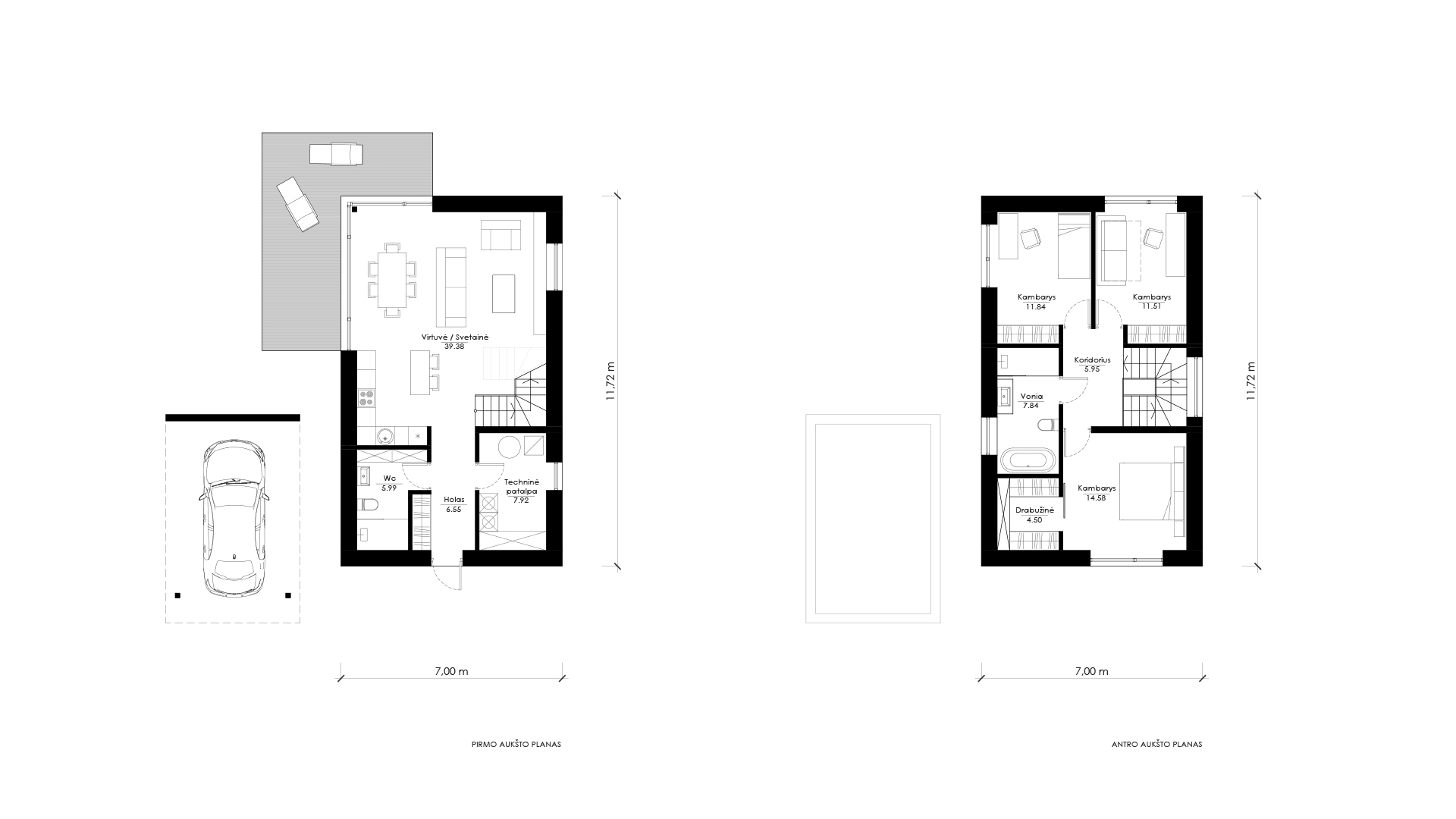
Projektas SUB: K01
Namo projektas SUB K01. Nuotrauka nr. 339Namo projektas SUB K01. Nuotrauka nr. 338Namo projektas SUB K01. Nuotrauka nr. 337Namo projektas SUB K01. Nuotrauka nr. 340Namo projektas SUB K01. Nuotrauka nr. 341Namo projektas SUB K01. Nuotrauka nr. 342Namo projektas SUB K01. Nuotrauka nr. 352