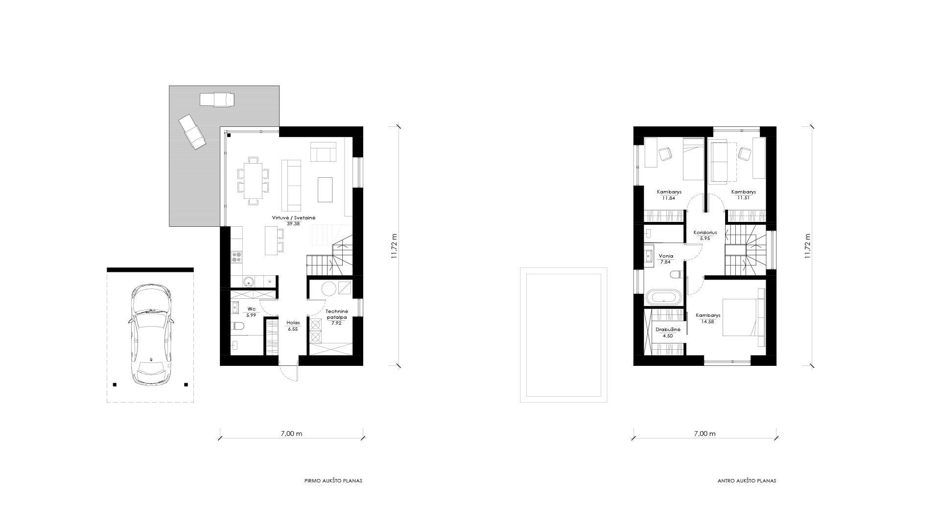
Projektas SUB: K02
Namo projektas SUB K02. Nuotrauka nr. 355Namo projektas SUB K02. Nuotrauka nr. 353Namo projektas SUB K02. Nuotrauka nr. 354Namo projektas SUB K02. Nuotrauka nr. 356