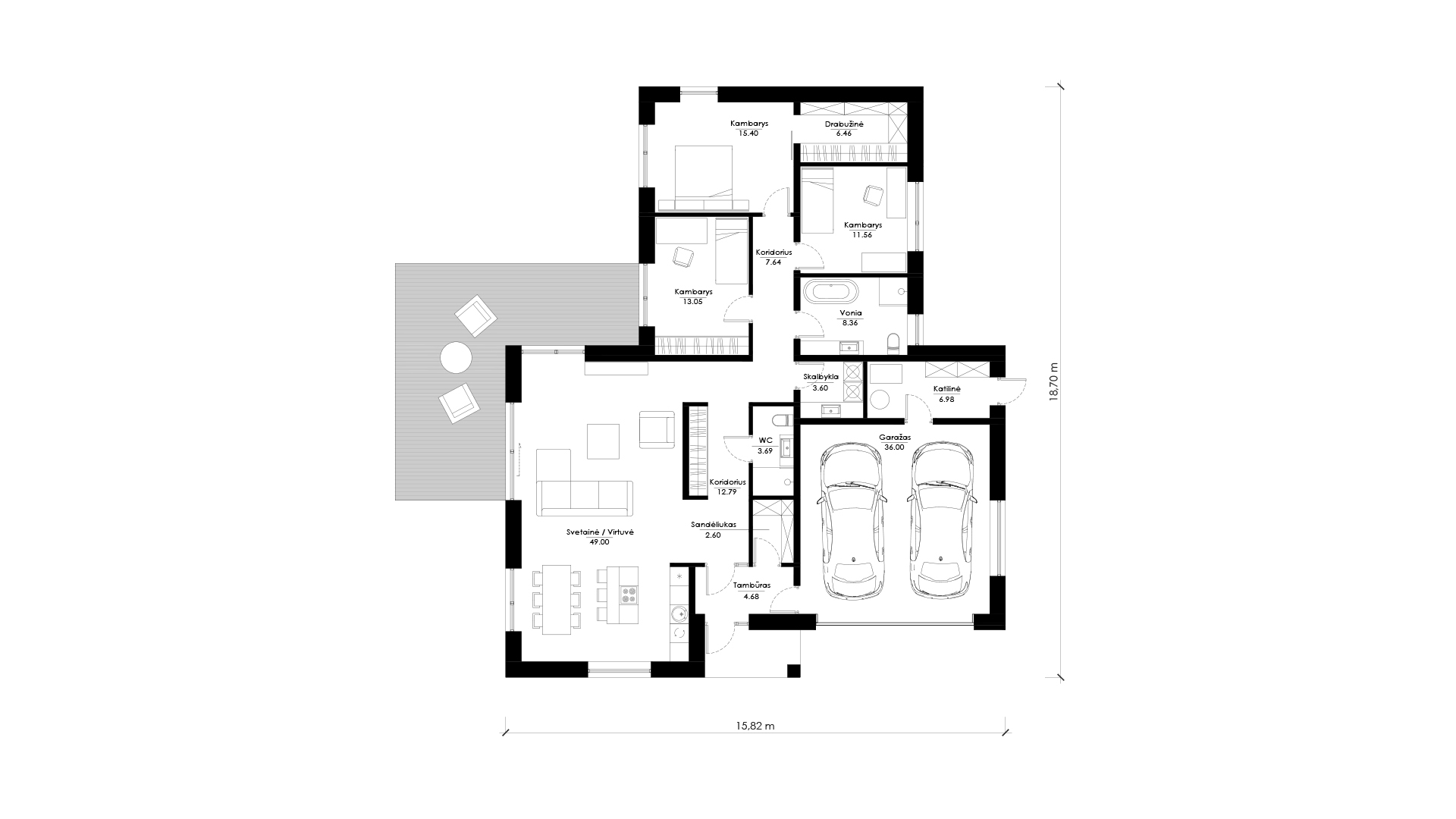
Projektas SUB: C03
Namo projektas SUB C03. Nuotrauka nr. 312Namo projektas SUB C03. Nuotrauka nr. 313Namo projektas SUB C03. Nuotrauka nr. 314Namo projektas SUB C03. Nuotrauka nr. 315Namo projektas SUB C03. Nuotrauka nr. 245