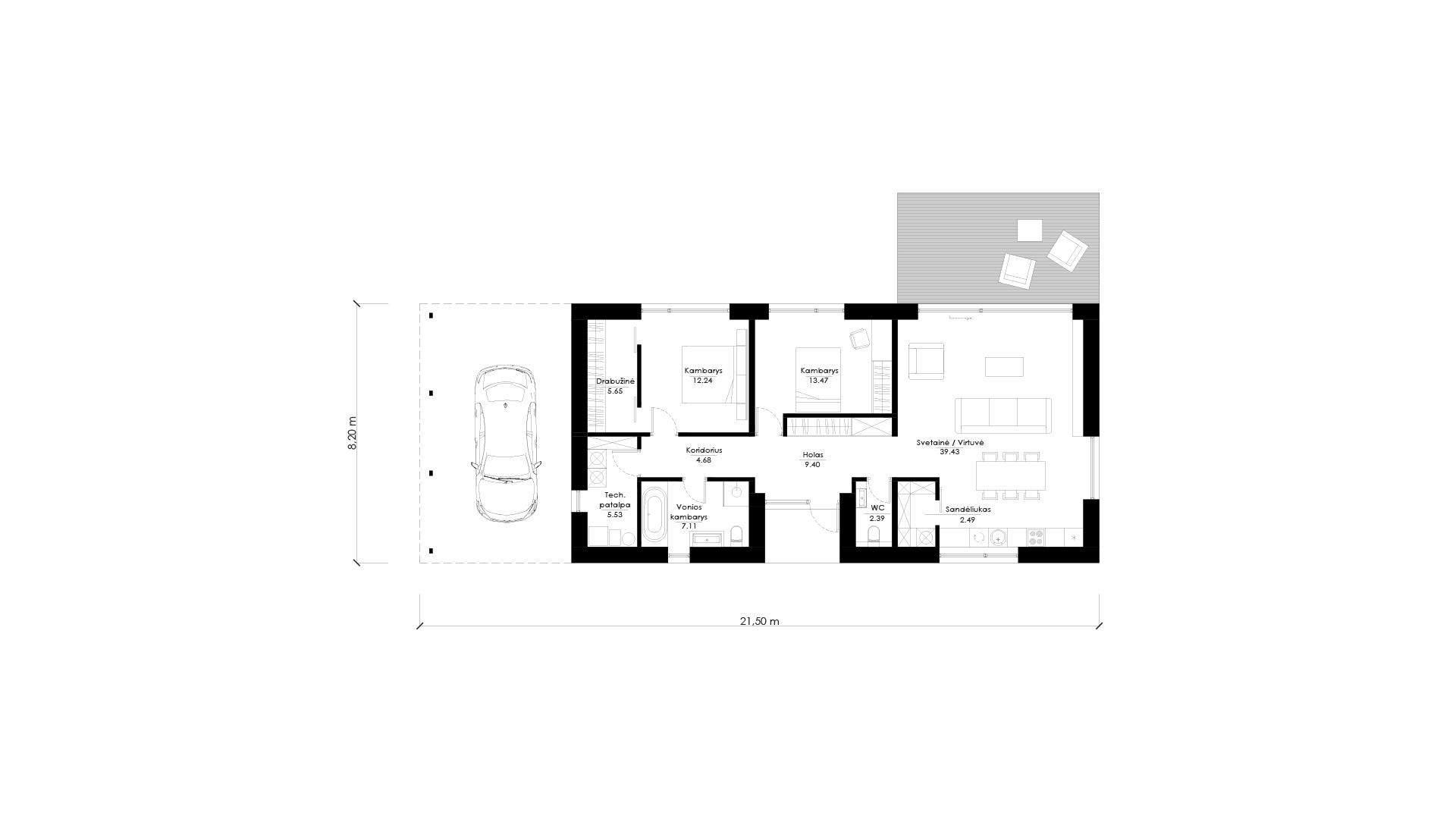
Projektas SUB: D01
Namo projektas SUB D01. Nuotrauka nr. 269Namo projektas SUB D01. Nuotrauka nr. 268Namo projektas SUB D01. Nuotrauka nr. 270Namo projektas SUB D01. Nuotrauka nr. 266Namo projektas SUB D01. Nuotrauka nr. 267Namo projektas SUB D01. Nuotrauka nr. 768