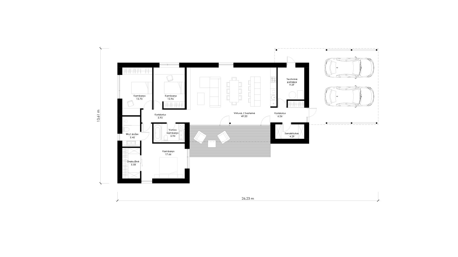
Projektas SUB: L04
Namo projektas SUB L04. Nuotrauka nr. 578Namo projektas SUB L04. Nuotrauka nr. 575Namo projektas SUB L04. Nuotrauka nr. 580Namo projektas SUB L04. Nuotrauka nr. 581Namo projektas SUB L04. Nuotrauka nr. 576Namo projektas SUB L04. Nuotrauka nr. 775