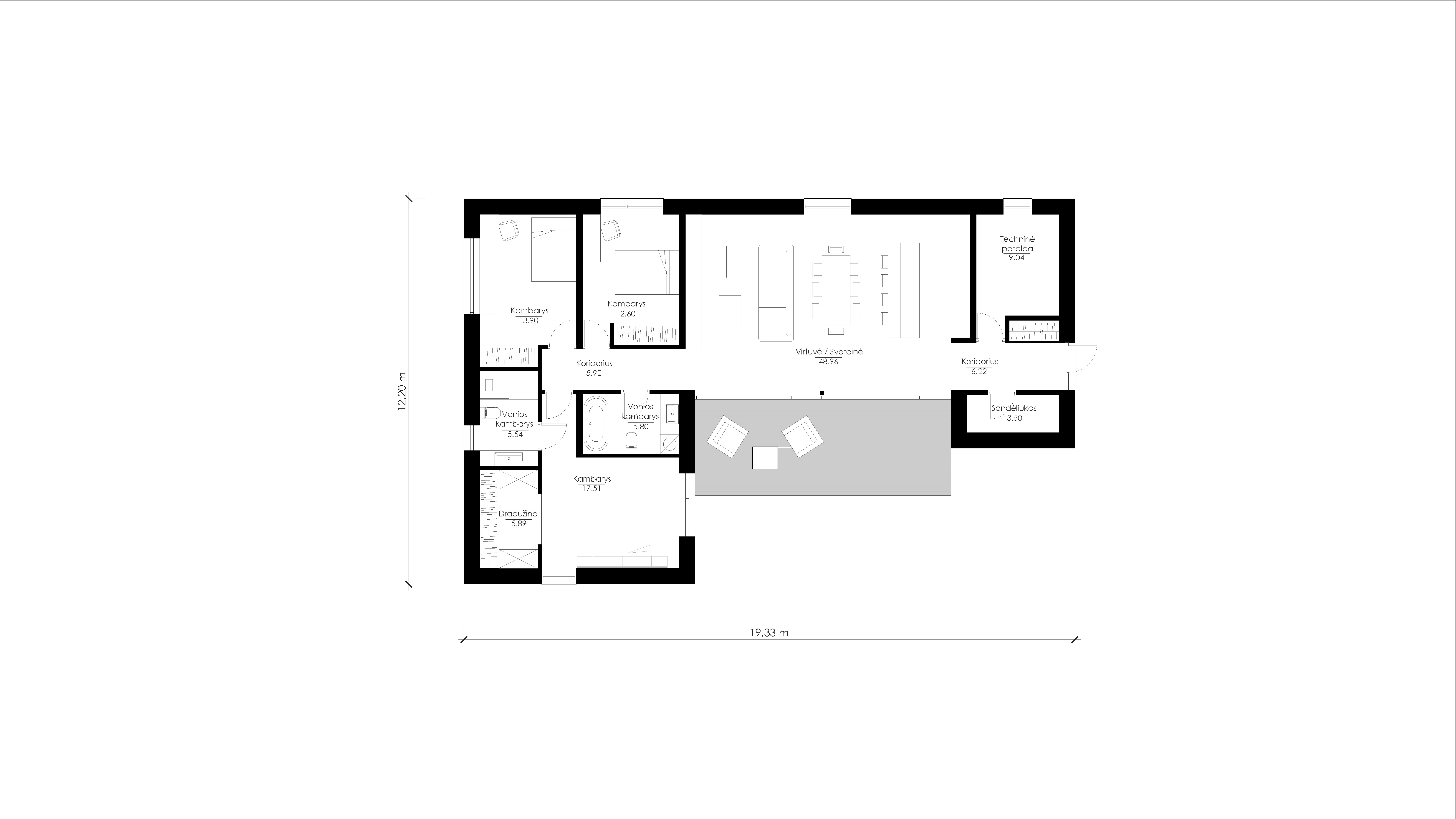
Projektas SUB: L01
Namo projektas SUB L01. Nuotrauka nr. 552Namo projektas SUB L01. Nuotrauka nr. 554Namo projektas SUB L01. Nuotrauka nr. 553Namo projektas SUB L01. Nuotrauka nr. 556Namo projektas SUB L01. Nuotrauka nr. 559