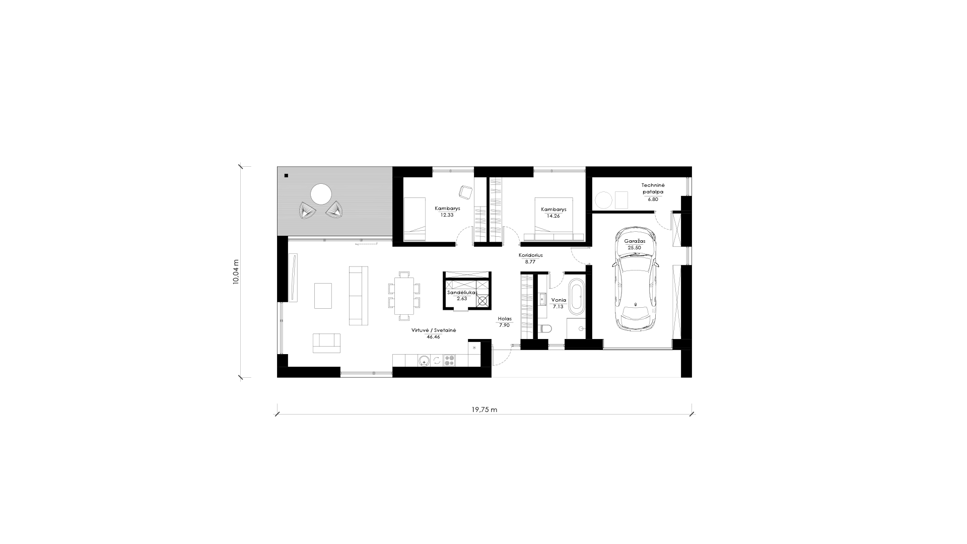
Projektas SUB: J02
Namo projektas SUB J02. Nuotrauka nr. 349Namo projektas SUB J02. Nuotrauka nr. 346Namo projektas SUB J02. Nuotrauka nr. 347Namo projektas SUB J02. Nuotrauka nr. 348Namo projektas SUB J02. Nuotrauka nr. 350