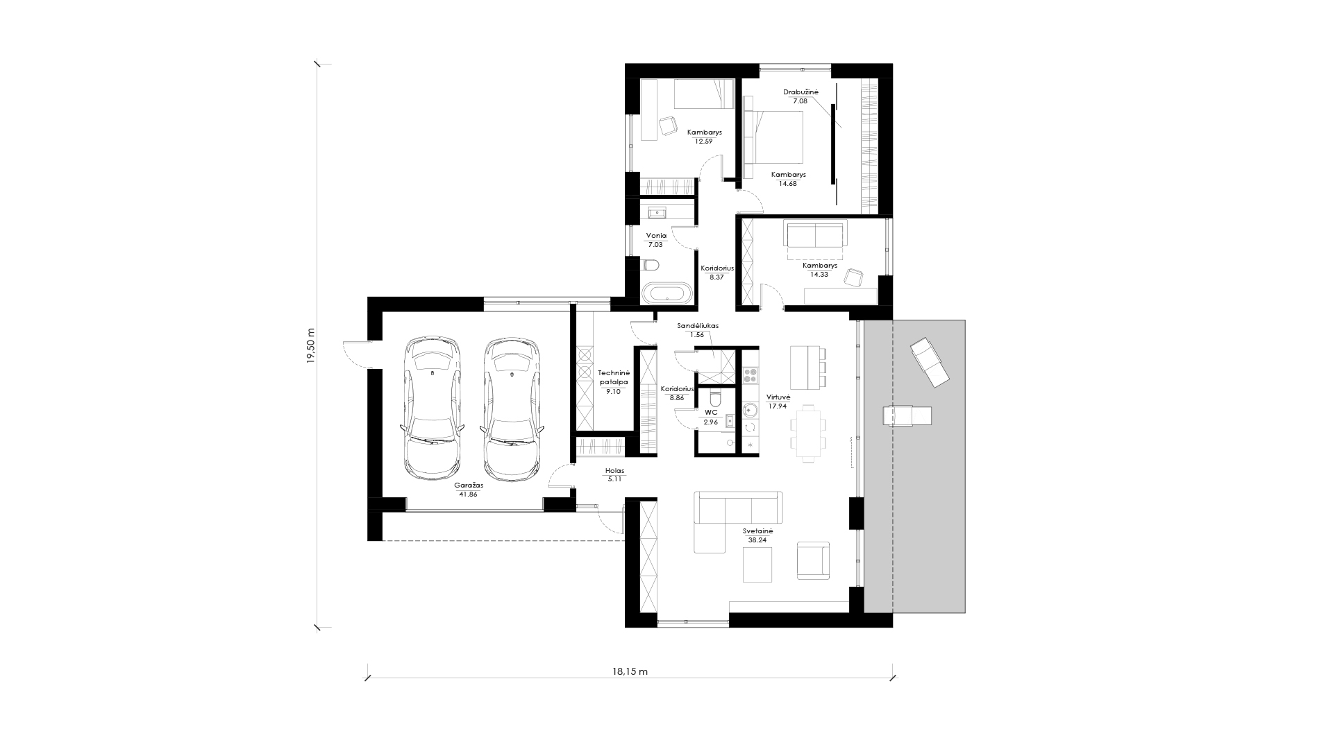
Projektas SUB: E02
Namo projektas SUB E02. Nuotrauka nr. 169Namo projektas SUB E02. Nuotrauka nr. 171Namo projektas SUB E02. Nuotrauka nr. 168Namo projektas SUB E02. Nuotrauka nr. 170Namo projektas SUB E02. Nuotrauka nr. 780